buildableas
Tegningspakke - B4
Tegningspakke - B4
Kunne ikke laste inn hentetilgjengelighet
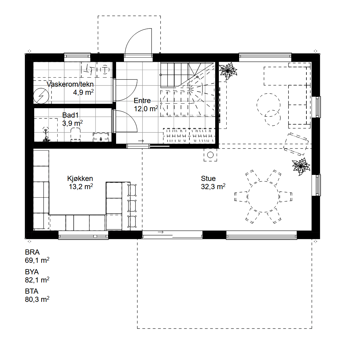
B4 er en kompakt 2-plans enebolig, med full takhøyde i begge etasjer. Boligen har et lite fotavtrykk, som gjør den aktuell for flere tomter.
Boligen mangler sportsbod på 5 kvm, for oppfyllelse av TEK17. Dette må tilrettelegges utenfor boligen.
| BRA | BYA | Møne | Gesims |
| 138,1 m2 | 82,1 m2 | 7,4 m | 5,9 m |
| Sov | Bad | Største lengde | Største bredde |
| 3 |
2 |
11,4 m | 7,2 m |
Innhold i tegningspakken
Tegningene i denne pakken leveres i målestokk 1:100.
PDF (plan, snitt og fasader)
DWG (plan, snitt og fasader)
IFC (3D-modell)
BIMx-fil (3D-fil fil for BIMx-app)
Ved kjøp får man tilsendt en link for nedlastning av filene, i form av en zippet mappe.
Rettigheter
Kunde/kjøper gis rettighet til bruk av tegningene, ved eiendommen som registreres ved kjøp av dette produktet. Rettigheten gjelder kun for ett byggverk per tomt. Dersom det er ønskelig med flere enheter på samme tomt, kan Buildable AS kontaktes for avtale om redusert pris. Kunde/kjøper står fritt til å velge arkitekt for tilpasning av produktet, ved den registrerte eiendommen. Det er ikke tillatt å gjenbruke tegningene ved flere eiendommenr jfr loven om opphavsrett. Buildable AS beholder rettigheten til tegningene.
Tilpasning og plasering på tomt
Buildable AS kan kontaktes for tilpasninger og plassering av boligen på tomten. Vi kan bistå med komplette byggemeldingstegninger. Kontakt Buildable for pris.
Ansvar
Kunde/kjøper står du selv ansvarlig for å engasjere ansvarlig arkitekt, som tilpasser byggverket til den aktuelle tomten. Grunnen for dette er de ulike rammene for hver enkelt tomt, ved oppfyllelse av tekniske krav, gjeldende bestemmelser, tilpasning til terreng osv. Buildable AS kan stille med ansvar i de tilfellene selskapet engasjeres for utarbeidelse av komplette byggemeldingstegninger.
